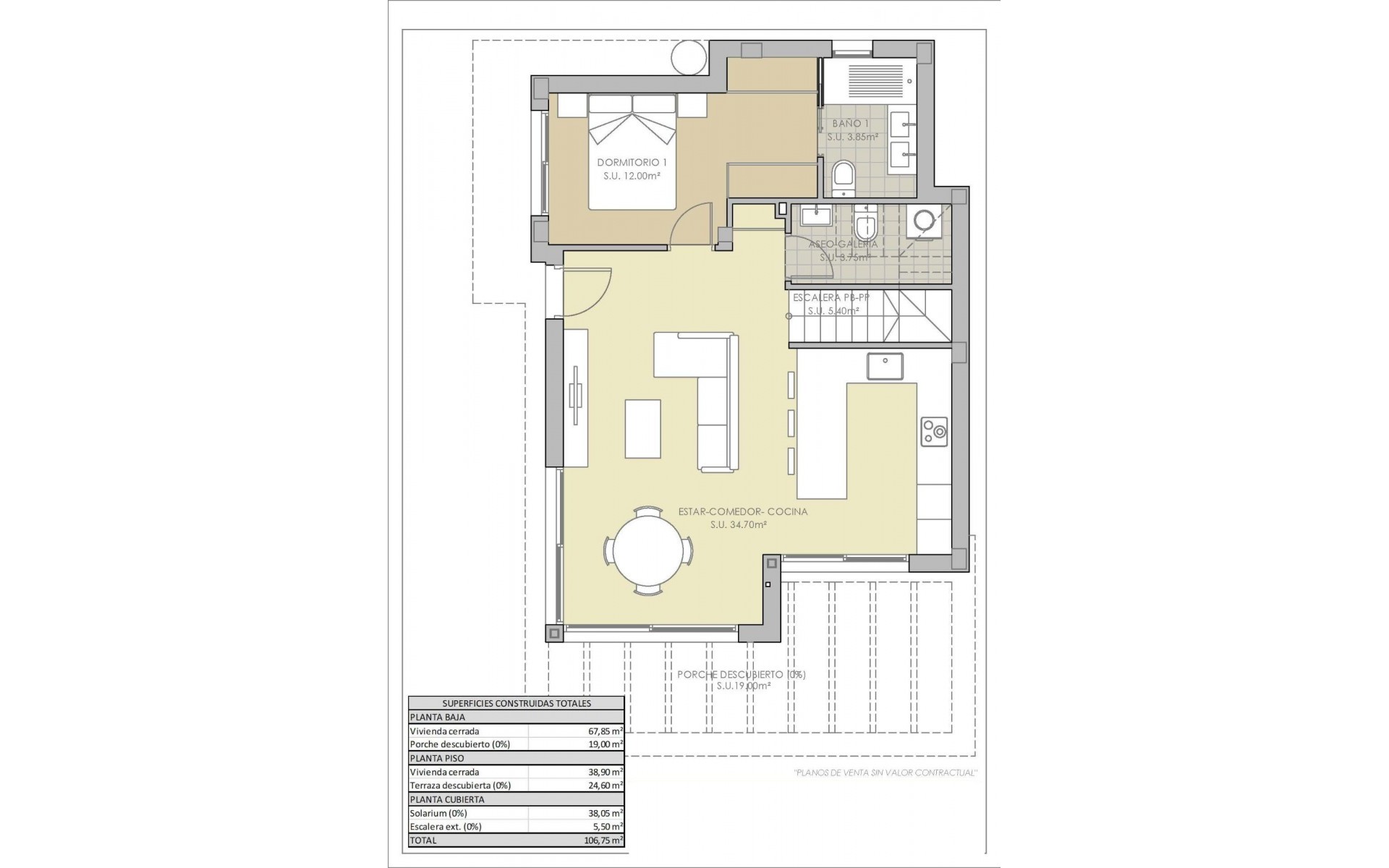
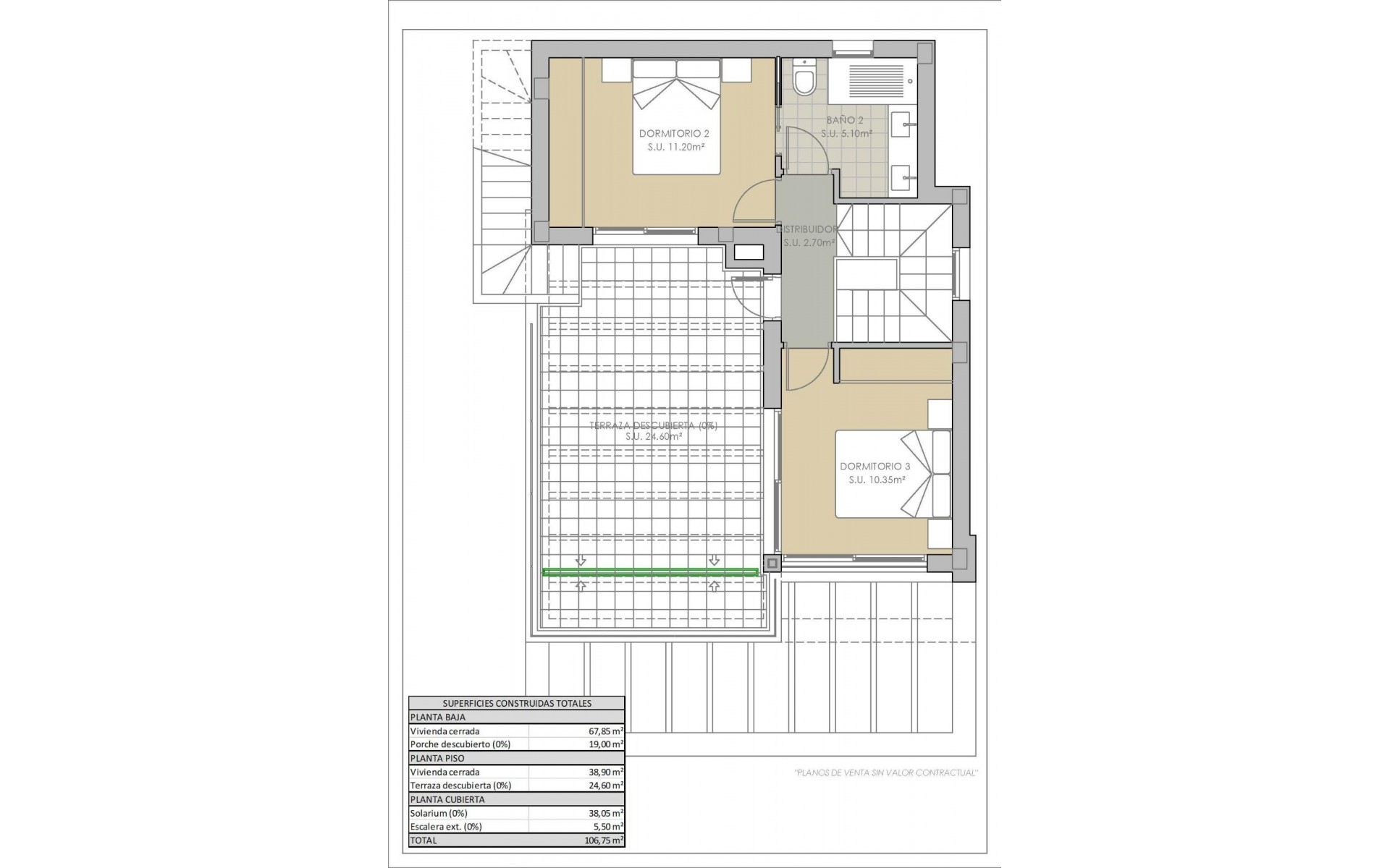
Elegante nieuwbouw villa's in Los Montesinos - Modern comfort in een serene omgeving Ruime nieuwbouw villa's in het hart van Los Montesinos, La Herrada Gelegen in de rustige wijk La Herrada, Los Montesinos, bieden deze nieuwbouwvilla's een perfecte mix van modern wonen en een rustige omgeving. Elke villa in dit prachtige project is zorgvuldig ontworpen om comfort en functionaliteit te maximaliseren, met drie slaapkamers en twee badkamers, ideaal voor gezinnen of stellen. De open keuken sluit naadloos aan op de ruime woonkamer, die een gezellige en uitnodigende ruimte biedt voor bijeenkomsten. Bovendien zorgen inbouwkasten en elektrische rolluiken voor meer gemak en stijl. Deze villa's liggen op loopafstand van het dorp Los Montesinos en bieden snelle toegang tot essentiële voorzieningen zoals restaurants, apotheken en winkels, waardoor het dagelijks leven gemakkelijk en plezierig is. Moderne functies en voorzieningen Elke villa heeft: Optioneel privézwembad Optioneel solarium: Voor een meerprijs kun je je woning uitbreiden met een solarium, ideaal om te zonnebaden of sterren te kijken. Privétuin en parkeerplaats: Elke villa heeft een privétuin en off-road parking, voor extra veiligheid en persoonlijke buitenruimte. Hoogwaardige afwerking: Van elektrische rolluiken tot glazen ramen, de villa's zijn voorzien van eersteklas materialen. De badkamers zijn ook voorzien van vloerverwarming voor extra comfort in de koelere maanden. Witgoed inbegrepen: De villa's zijn inclusief essentiële keukenapparatuur, wat gemak en waarde toevoegt. Toplocatie in de buurt van de belangrijkste bezienswaardigheden Los Montesinos is een charmant en rustig gebied gelegen tussen de beroemde zoutmeren van Torrevieja en La Mata. Deze natuurlijke omgeving biedt een unieke en gezonde omgeving, perfect voor wie op zoek is naar een evenwichtige levensstijl. Stranden van Guardamar en Torrevieja: Slechts 8 km rijden van prachtige stranden, waar bewoners kunnen genieten van zonnige dagen en uitzicht op zee. Golfbanen: Omringd door prestigieuze golfbanen binnen een straal van 5 km, zijn deze villa's een paradijs voor golfers. Vliegveld Alicante: De luchthaven van Alicante ligt op 29 km afstand en biedt snelle verbindingen naar de grote steden, waardoor reizen gemakkelijk en toegankelijk is. Natuurreservaten en buitenactiviteiten: De nabijgelegen natuurreservaten en meren bieden tal van recreatieve activiteiten, zoals vogels kijken, fietsen, wandelpaden en paardrijden. Een perfecte keuze voor rust en gemak Deze nieuwbouwvilla's in Los Montesinos bieden een uitzonderlijke kans om te genieten van moderne voorzieningen en een ontspannen levensstijl dicht bij de natuur. Of het nu gaat om een hoofdverblijfplaats of een vakantiehuis, dit object is een ideale keuze voor mensen die waarde hechten aan rust, gemak en toegankelijkheid.
Deze informatie is hier onderhevig aan fouten en maakt geen deel uit van een contract. De aanbieding kan zonder kennisgeving worden gewijzigd of ingetrokken. Prijzen zijn exclusief aankoopkosten.