Nieuwbouwappartementen met uitzicht op zee in Vera Playa, Almería
Ontdek dit uitzonderlijke nieuwe woonproject in Vera Playa, met 27 moderne appartementen in de eerste fase. Dit project is ontworpen om comfort, functionaliteit en een spectaculair uitzicht op de Middellandse Zee te combineren en is ideaal voor wie op zoek is naar een stijlvolle en comfortabele woning aan de Costa de Almería.
Moderne woningen met uitzicht op zee
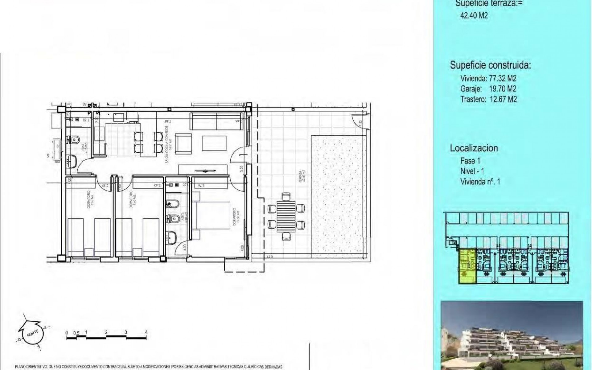
Elk appartement is zorgvuldig ontworpen om zoveel mogelijk natuurlijk licht binnen te laten en optimaal van het buitenleven te kunnen genieten. Er zijn appartementen met 1, 2 en 3 slaapkamers, met op de begane grond een eigen tuin, op de middelste verdiepingen een ruim terras en op de bovenste verdiepingen een penthouse met een eigen solarium. Dankzij het terrasvormige ontwerp hebben alle woningen een onoverdekt terras met een prachtig uitzicht op zee.
Hoogwaardige afwerking en volledig uitgeruste woningen
Elke woning is volledig gemeubileerd en uitgerust, klaar om te betrekken. Kenmerken zijn onder meer:
Ingerichte keuken met inbouwapparatuur
Complete badkamers met moderne voorzieningen
Airconditioning
Privé parkeerplaats en berging
Exclusieve gemeenschappelijke voorzieningen
Het hoogtepunt van dit wooncomplex is het gemeenschappelijke zwembad, omgeven door aangelegde tuinen, waardoor het de perfecte plek is om te ontspannen, te zonnen en te genieten van tijd met het gezin.
Toplocatie in Vera Playa
Vera Playa staat bekend om zijn lange zandstranden, ontspannen levensstijl en uitstekende voorzieningen. Het project ligt in een rustige maar goed bereikbare omgeving met alle voorzieningen en openbaar vervoer binnen handbereik. Belangrijkste afstanden:
Strand: 700 m
Desert Springs Golf Resort: 8 km
Centrum van Vera: 5 km
Jachthaven en restaurants van Garrucha: 6 km
Mojácar Commercial Park: 10 km
Luchthaven Almería: 85 km (ongeveer 1 uur)
Hogesnelheidstreinstation AVE (in aanbouw): 3 km
Een ideale woning of investeringsmogelijkheid
Of u nu op zoek bent naar een permanente woning, een vakantiehuis of een veilige investering, deze nieuwbouwappartementen in Vera Playa bieden een uitstekende prijs-kwaliteitverhouding in een van de meest gewilde kustplaatsen van Almería.
Maak van Vera Playa uw nieuwe thuis en ervaar de perfecte combinatie van modern wonen, uitzicht op zee en een mediterrane levensstijl. Neem vandaag nog contact met ons op om een bezichtiging te plannen en uw droomhuis aan de Costa de Almería te bemachtigen.
Deze informatie is hier onderhevig aan fouten en maakt geen deel uit van een contract. De aanbieding kan zonder kennisgeving worden gewijzigd of ingetrokken. Prijzen zijn exclusief aankoopkosten.