Javea · Alicante REF #CSPX-64531 · Villa

850.000€

Javea · Alicante REF #CSPX-64531 · Villa

Kenmerken

  • Gebouwd 152 m2
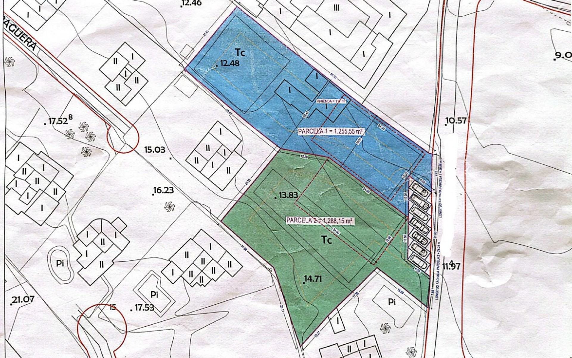
  • Plot 2.600m2
  • Slaapkamers 3
  • Badkamers 2
· Slaapkamers: 3
· Badkamers: 2
· Gebouwd: 152m2
· Plot: 2.600m2

Plaats

Een vraag doen

Responsable del tratamiento: Complete Spanish Propery, SL, Finalidad del tratamiento: Gestión y control de los servicios ofrecidos a través de la página Web de Servicios inmobiliarios, Envío de información a traves de newsletter y otros, Legitimación: Por consentimiento, Destinatarios: No se cederan los datos, salvo para elaborar contabilidad, Derechos de las personas interesadas: Acceder, rectificar y suprimir los datos, solicitar la portabilidad de los mismos, oponerse altratamiento y solicitar la limitación de éste, Procedencia de los datos: El Propio interesado, Información Adicional: Puede consultarse la información adicional y detallada sobre protección de datos Aquí.

Financiën

Deze informatie is hier onderhevig aan fouten en maakt geen deel uit van een contract. De aanbieding kan zonder kennisgeving worden gewijzigd of ingetrokken. Prijzen zijn exclusief aankoopkosten.

Bereken hypotheken

Wisselkantoor

  • Pounds: 740.928 GBP
  • Russische roebel: 740.928 RUB
  • Zwitserse frank: 784.635 CHF
  • Chinese yuan: 6.841.055 CNY
  • Dollar: 1.002.745 USD
  • Zweedse kroon: 9.182.550 SEK
  • De Noorse kroon: 9.364.450 NOK

WhatsApp