Aspe · Alicante REF #CSPN-70531 · Villa

581.000€

Aspe · Alicante REF #CSPN-70531 · Villa

Les caractéristiques

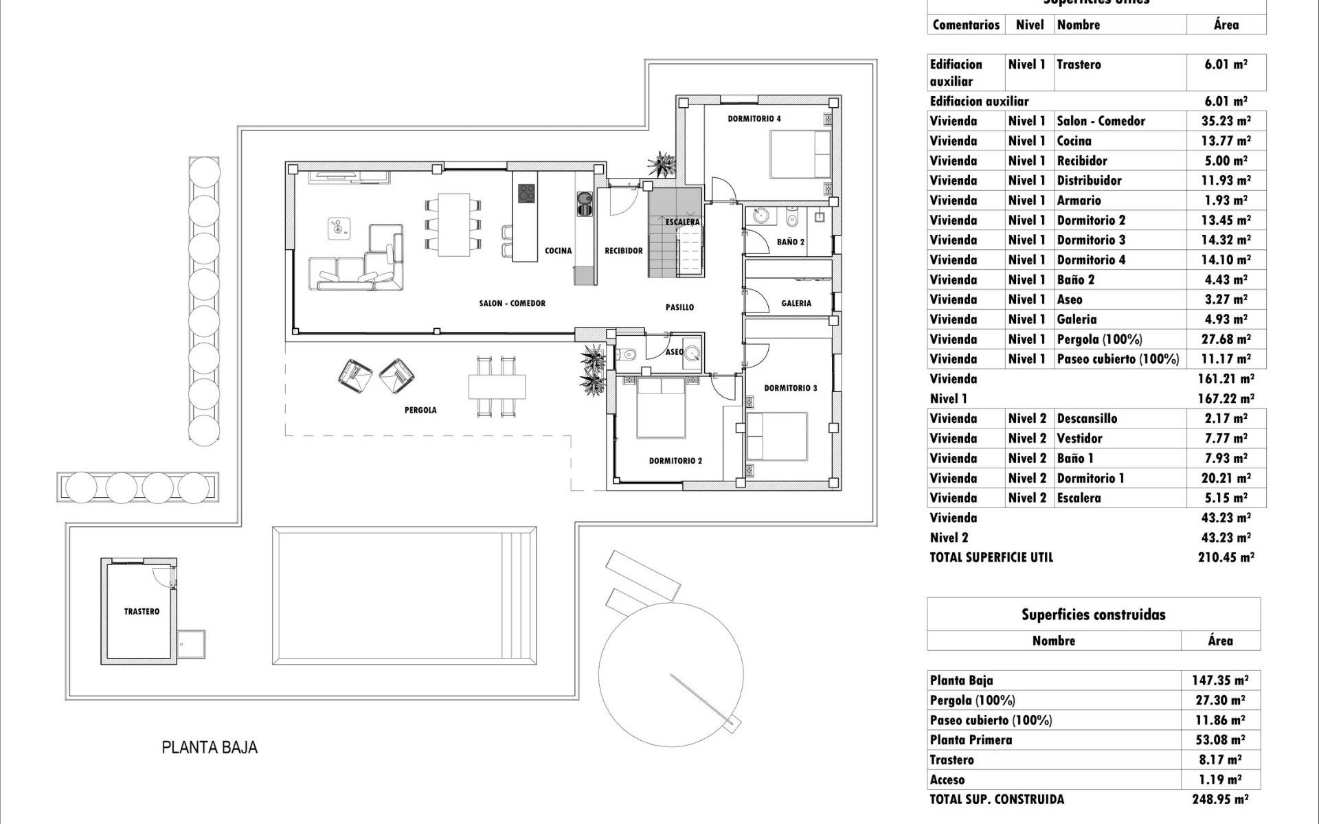
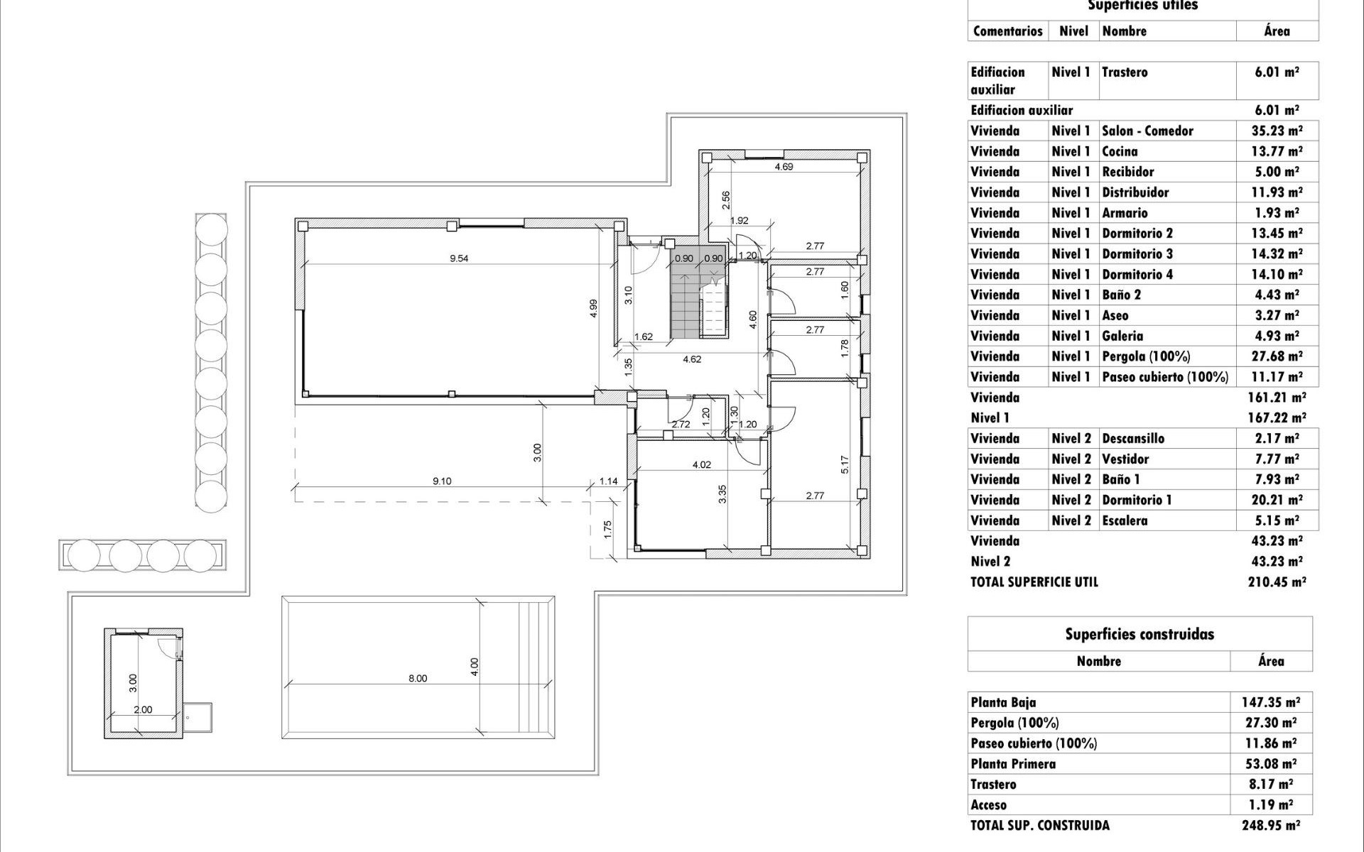
  • Construit 248 m2
  • Intrigue 13.172m2
  • Chambres 4
  • Salles de bain 3
· Chambres: 4
· Salles de bain: 3
· Construit: 248m2
· Intrigue: 13.172m2
· Piscine: Oui
· Garden
· Private pool
· Gated
· Number of Parking Spaces: 1
· Air Conditioning: Pre-Installed
· Near Schools
· Double Bedrooms: 4
· Terrace: 38 Msq.
· Location: Mountain
· Parking - Space
· Beach: 25000 Meters
· Useable Build Space: 210 Msq.

La description

Emplacement

Faire une enquête

Responsable del tratamiento: Complete Spanish Propery, SL, Finalidad del tratamiento: Gestión y control de los servicios ofrecidos a través de la página Web de Servicios inmobiliarios, Envío de información a traves de newsletter y otros, Legitimación: Por consentimiento, Destinatarios: No se cederan los datos, salvo para elaborar contabilidad, Derechos de las personas interesadas: Acceder, rectificar y suprimir los datos, solicitar la portabilidad de los mismos, oponerse altratamiento y solicitar la limitación de éste, Procedencia de los datos: El Propio interesado, Información Adicional: Puede consultarse la información adicional y detallada sobre protección de datos Aquí.

Finances

Cette information donnée ici est sujette à des erreurs et ne fait partie d'aucun contrat. L'offre peut être modifiée ou retirée sans préavis. Les prix n'incluent pas les coûts d'achat

Calculer les hypothèques

Échange de devises

  • Livres sterling: 506.446 GBP
  • Rouble russe: 506.446 RUB
  • Franc suisse: 536.321 CHF
  • Yuan chinois: 4.676.062 CNY
  • Dollar: 685.406 USD
  • Couronne suédoise: 6.276.543 SEK
  • La couronne norvégienne: 6.400.877 NOK

WhatsApp