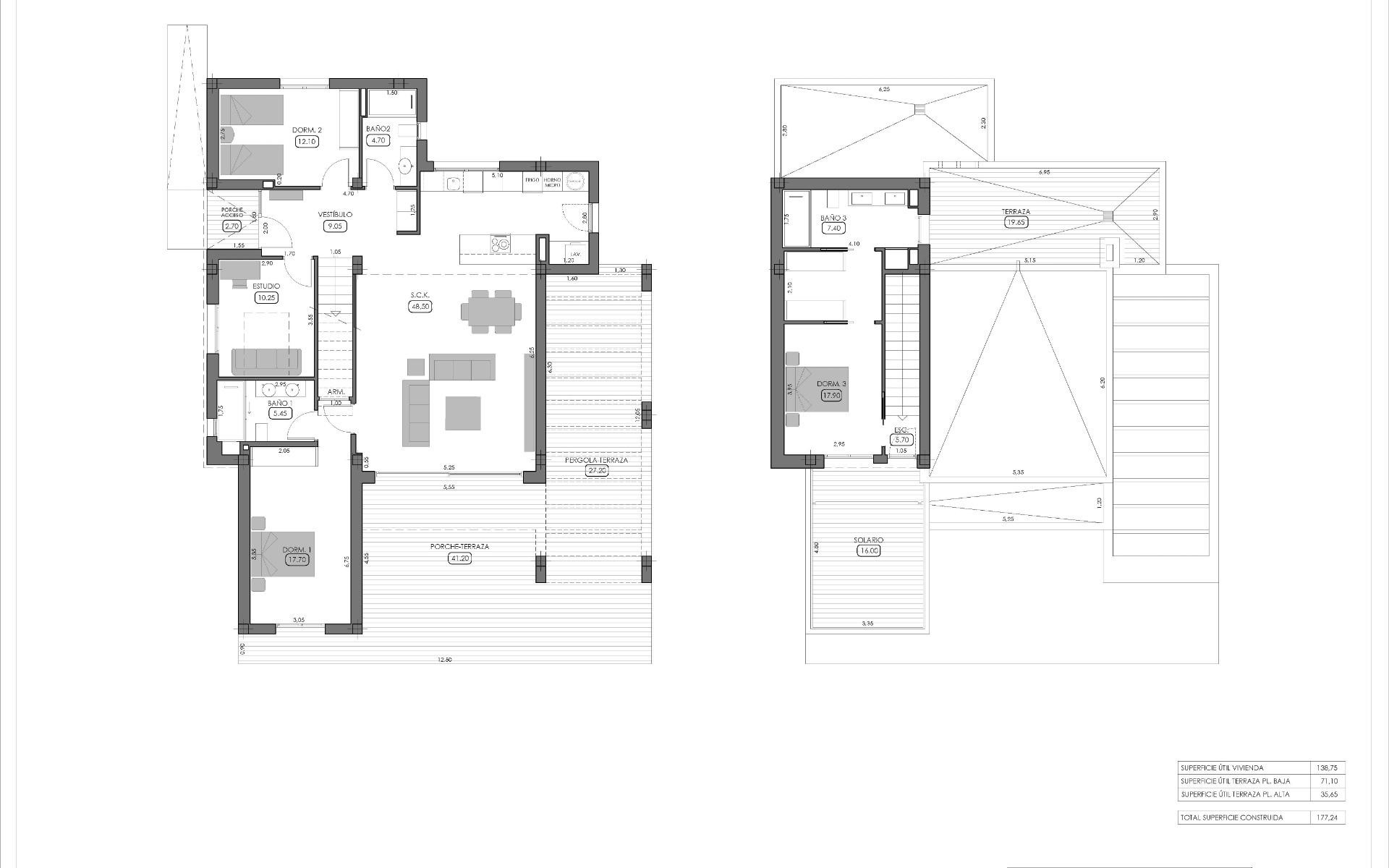
Villas contemporaines neuves avec piscine privée dans le complexe La Finca Golf Resort, à Algorfa Une vie exclusive dans une communauté de golf prestigieuse Découvrez le luxe, la tranquillité et la vie méditerranéenne moderne dans ces villas neuves situées dans le célèbre complexe La Finca Golf Resort à Algorfa, sur la Costa Blanca Sud. Ce quartier résidentiel très prisé est entouré d'une végétation luxuriante, de fairways vallonnés et de paysages paisibles, offrant un cadre idéal pour un style de vie détendu et sophistiqué. La charmante ville d'Algorfa offre une atmosphère espagnole traditionnelle et d'excellents services, tout en étant à quelques minutes en voiture de belles plages, de zones commerciales et de villes côtières animées. Élégantes villas à deux niveaux avec 4 chambres Ces villas contemporaines sont conçues pour offrir confort, espace et fonctionnalité. Les maisons sont réparties sur deux étages : Rez-de-chaussée Trois chambres spacieuses avec placards intégrés Deux salles de bains entièrement équipées, dont une en suite Salon et salle à manger lumineux et ouverts avec de grandes portes coulissantes en verre Cuisine moderne avec bar Accès direct à une terrasse couverte, au jardin et à la piscine Étage supérieur Chambre principale avec salle de bains attenante et dressing Deux terrasses privées d'une superficie totale de 36 mètres carrés, idéales pour profiter du soleil et de la vue Les villas comprennent la climatisation centrale entièrement installée, des volets motorisés, le chauffage au sol dans les salles de bains et un parking privé dans la propriété. Vie en plein air avec piscine privée Profitez du climat méditerranéen chaud dans le confort de votre propre jardin. L'aménagement extérieur comprend une pergola moderne, de spacieuses terrasses ensoleillées et une piscine privée, créant un cadre idéal pour se détendre, se divertir et profiter de repas en plein air et de moments en famille. Emplacement privilégié à proximité des golfs et des plages Situées dans l'un des complexes de golf les plus prestigieux de la région, ces villas offrent un style de vie exceptionnel à proximité des installations sportives, naturelles et de loisirs. De belles plages de sable, les meilleurs centres commerciaux, des restaurants raffinés, des sports nautiques et des attractions culturelles sont tous facilement accessibles. Distances par rapport aux principaux points d'intérêt Club de golf La Finca : accessible à pied Plages de Guardamar del Segura : 20 km Centre commercial Zenia Boulevard : 15 km Torrevieja : 20 km Aéroport d'Alicante : 40 km Aéroport de Murcie : 55 km La maison de vos rêves en Méditerranée vous attend Que vous recherchiez une résidence permanente, une maison de vacances ou un investissement sûr, ces villas offrent la combinaison idéale entre luxe, confort et emplacement privilégié. Contactez-nous dès aujourd'hui pour obtenir plus d'informations ou planifier une visite et découvrir la vie au La Finca Golf Resort à Algorfa.
Cette information donnée ici est sujette à des erreurs et ne fait partie d'aucun contrat. L'offre peut être modifiée ou retirée sans préavis. Les prix n'incluent pas les coûts d'achat