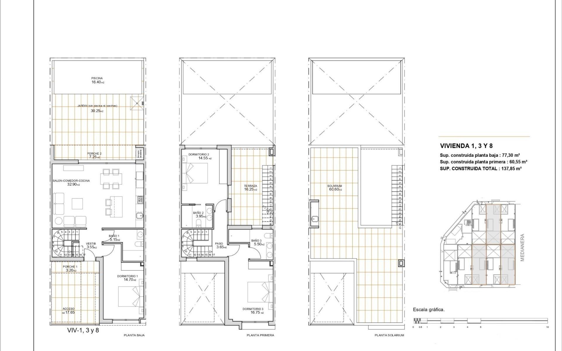
Maisons de ville nouvellement construites à San Javier - Design moderne et emplacement privilégié Maisons de ville au design contemporain avec piscine privée Découvrez ce complexe exclusif de 9 maisons de ville flambant neuves à San Javier, Murcie, conçues pour offrir un maximum de confort et un style de vie moderne. Chaque propriété dispose d'une piscine privée, d'une terrasse, d'un solarium et d'une place de parking, ce qui constitue un espace idéal pour se détendre et profiter de la vie tout au long de l'année. Les maisons ont été construites avec des matériaux de haute qualité et une conception ouverte qui tire le meilleur parti de la lumière naturelle. Elles sont parfaites à la fois pour une résidence permanente et pour une maison de vacances sur la Costa Cálida. Distribution et équipement de haute qualité Chaque maison de ville dispose de 3 chambres spacieuses avec placards et commodes. 3 salles de bains entièrement équipées avec meubles, miroirs et écrans. Cuisine ouverte, entièrement équipée et avec des produits blancs inclus. Salon-salle à manger spacieux, avec de grandes fenêtres qui donnent sur la terrasse. Piscine privée avec douche et jardin avec gazon artificiel. Solarium avec cuisine d'été, idéal pour profiter du climat méditerranéen. Pré-installation de l'air conditionné à chaque étage. Menuiserie extérieure en PVC avec double vitrage, garantissant une isolation thermique et acoustique. Porte d'entrée sécurisée, pour une plus grande tranquillité et protection. Situation stratégique à San Javier San Javier est une ville côtière qui dispose d'un large éventail de services, d'installations sportives et d'espaces de loisirs. L'emplacement de cette résidence permet un accès rapide à : Plages de la Mar Menor - à seulement 5 minutes en voiture. Plages de la mer Méditerranée - à 10 minutes. Terrains de golf - Diverses options dans la région, idéales pour les amateurs de golf. Centres commerciaux et services - Tout ce dont vous avez besoin est à quelques minutes. Aéroport de Murcia-Corvera - à 30 minutes. Aéroport d'Alicante - à 45 minutes. Profitez du meilleur climat et de la meilleure qualité de vie à San Javier San Javier est une excellente option pour ceux qui recherchent une propriété proche de la mer, avec un climat privilégié et l'accès à toutes sortes d'activités de plein air. Ne manquez pas l'occasion d'acheter l'une de ces maisons exclusives. Contactez-nous dès aujourd'hui pour plus d'informations ou pour programmer une visite.
Cette information donnée ici est sujette à des erreurs et ne fait partie d'aucun contrat. L'offre peut être modifiée ou retirée sans préavis. Les prix n'incluent pas les coûts d'achat