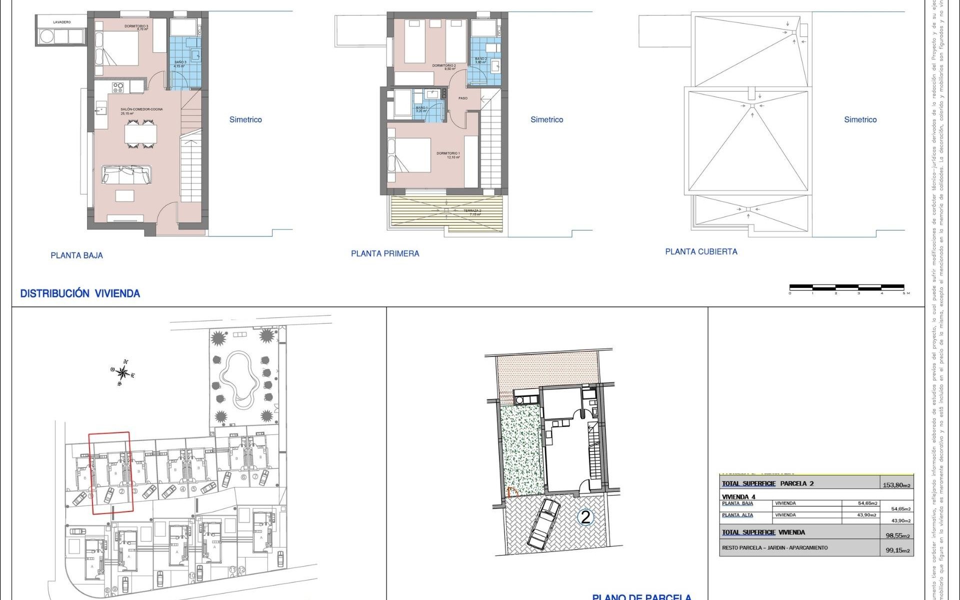
Nieuwe halfvrijstaande villa's aan zee in La Marina - El Pinet Beach Exclusief mediterraan wonen vlakbij het strand Deze nieuwe woonwijk met halfvrijstaande villa's in La Marina, op slechts 500 meter van het strand van El Pinet, biedt een onovertroffen combinatie van modern design en een bevoorrechte natuurlijke omgeving. Gelegen naast het natuurpark Las Salinas, kunnen bewoners genieten van gouden zandstranden, kristalhelder water, beschermde duinen en een eeuwenoud dennenbos - de perfecte plek om het hele jaar door te wonen of te genieten als vakantieverblijf. Moderne mediterrane villa's ontworpen voor comfort De villa's zijn verdeeld over twee verdiepingen en beschikken over: 3 ruime slaapkamers en 3 badkamers Begane grond met open keuken en woonkamer, een slaapkamer, een badkamer en toegang tot de privétuin met parkeerplaats Eerste verdieping met twee slaapkamers, beide met eigen badkamer, en een groot terras dat in verbinding staat met de hoofdslaapkamer Elke woning is ontworpen met een licht, comfortabel interieur en hoogwaardige afwerking, waardoor een unieke en gastvrije sfeer is gecreëerd. Volledig uitgerust met premium voorzieningen Deze villa's worden geleverd met: Volledig ingerichte keuken met inductiekookplaat, afzuigkap, oven, koelkast en voorinstallatie voor vaatwasser Moderne kasten met hoogwaardige afwerking Volledig geïnstalleerde airconditioning met luchtkanalen Elektrische rolluiken Gemeenschappelijk zwembad omgeven door aangelegde tuinen Een toplocatie aan de Costa Blanca Wonen in La Marina betekent genieten van alle gemakken van een goed verzorgde stad, terwijl u omringd bent door de natuur en de Middellandse Zee. Op loopafstand vindt u winkels, restaurants en essentiële voorzieningen. Afstanden tot belangrijke bezienswaardigheden: Strand van El Pinet: 500 m Stad Elche: 17 km Internationale luchthaven Alicante-Elche: 22 km Golfbanen (La Marquesa, El Plantío): 15-20 km Stad en haven van Alicante: 30 km De perfecte levensstijl aan de kust Of u nu op zoek bent naar een permanente woning, een tweede huis of een slimme investering, deze villa's in El Pinet bieden een levensstijl die wordt gekenmerkt door zee, natuur en modern comfort. Met het hele jaar door zon en een bevoorrechte ligging is La Marina een van de meest gewilde plaatsen aan de Costa Blanca. Neem vandaag nog contact met ons op om een bezichtiging te regelen en uw droomvilla aan de Middellandse Zee te bemachtigen.
Deze informatie is hier onderhevig aan fouten en maakt geen deel uit van een contract. De aanbieding kan zonder kennisgeving worden gewijzigd of ingetrokken. Prijzen zijn exclusief aankoopkosten.