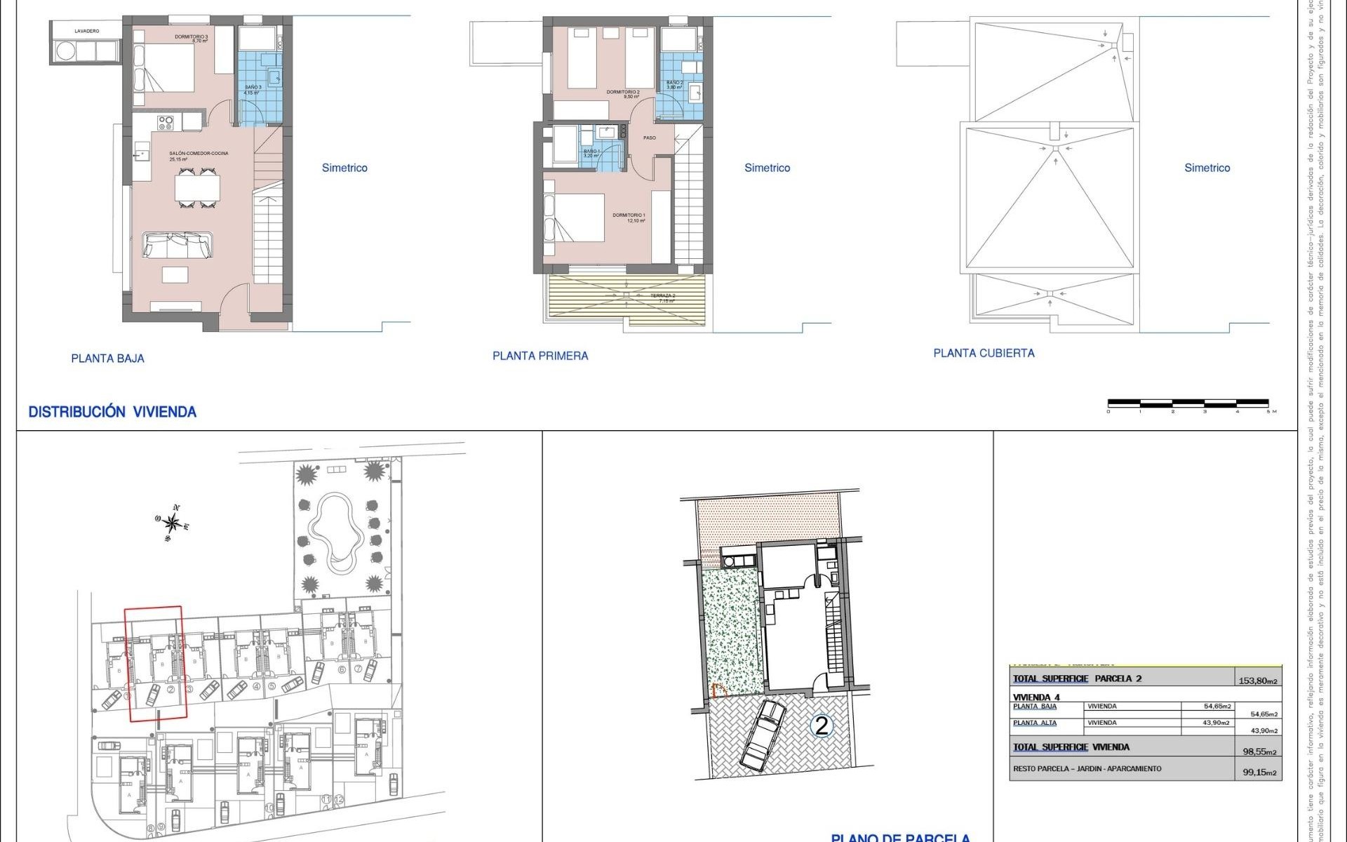
Neue Doppelhaushälften am Meer in La Marina – Strand El Pinet Exklusives Wohnen am Mittelmeer in Strandnähe Diese neue Wohnanlage mit Doppelhaushälften in La Marina, nur 500 Meter vom Strand El Pinet entfernt, bietet eine unschlagbare Kombination aus modernem Design und einer privilegierten natürlichen Umgebung. Dank der Lage neben dem Naturpark Las Salinas können die Bewohner goldene Sandstrände, kristallklares Wasser, geschützte Dünen und einen jahrhundertealten Pinienwald genießen – der perfekte Ort, um das ganze Jahr über zu leben oder als Urlaubsrückzugsort zu genießen. Moderne mediterrane Villen, die auf Komfort ausgelegt sind Die Villen sind auf zwei Etagen verteilt und verfügen über: 3 geräumige Schlafzimmer und 3 Badezimmer Erdgeschoss mit offener Küche und Wohnzimmer, einem Schlafzimmer, einem Badezimmer und Zugang zum privaten Garten mit Parkplatz Erster Stock mit zwei Schlafzimmern, beide mit eigenem Bad, und einer großen Terrasse, die mit dem Hauptschlafzimmer verbunden ist Jedes Haus wurde mit hellen, komfortablen Innenräumen und hochwertigen Oberflächen gestaltet, wodurch eine einzigartige und einladende Atmosphäre entsteht. Voll ausgestattet mit Premium-Ausstattung Diese Villen werden geliefert mit: Voll ausgestattete Küche mit Induktionskochfeld, Dunstabzugshaube, Backofen, Kühlschrank und Vorinstallation für Geschirrspüler Moderne Schränke mit hochwertigen Oberflächen Voll installierte Klimaanlage mit Luftkanälen Elektrische Rollläden Gemeinschaftspool, umgeben von gepflegten Gärten Eine erstklassige Lage an der Costa Blanca In La Marina zu leben bedeutet, alle Annehmlichkeiten einer gut versorgten Stadt zu genießen und gleichzeitig von Natur und dem Mittelmeer umgeben zu sein. In Gehweite finden Sie Geschäfte, Restaurants und wichtige Dienstleistungen. Entfernungen zu wichtigen Sehenswürdigkeiten: Strand El Pinet: 500 m Stadt Elche: 17 km Internationaler Flughafen Alicante-Elche: 22 km Golfplätze (La Marquesa, El Plantío): 15–20 km Stadt Alicante und Hafen: 30 km Der perfekte Lebensstil an der Küste Ob Sie einen dauerhaften Wohnsitz, ein Zweitwohnsitz oder eine kluge Investition suchen, diese Villen in El Pinet bieten einen Lebensstil, der von Meer, Natur und modernem Komfort geprägt ist. Mit ganzjährigem Sonnenschein und einer privilegierten Lage ist La Marina einer der begehrtesten Orte an der Costa Blanca. Kontaktieren Sie uns noch heute, um einen Besichtigungstermin zu vereinbaren und sich Ihre Traumvilla am Mittelmeer zu sichern.
Diese hier angegebenen Informationen unterliegen Fehlern und sind nicht Bestandteil eines Vertrages. Das Angebot kann ohne vorherige Ankündigung geändert oder zurückgezogen werden. Die Preise beinhalten keine Einkaufskosten.