Neubau-Bungalows mit Gemeinschaftspool in Pilar de la Horadada - Costa Blanca Süd
Moderne Residenzen in der Nähe des Strandes und des Stadtzentrums
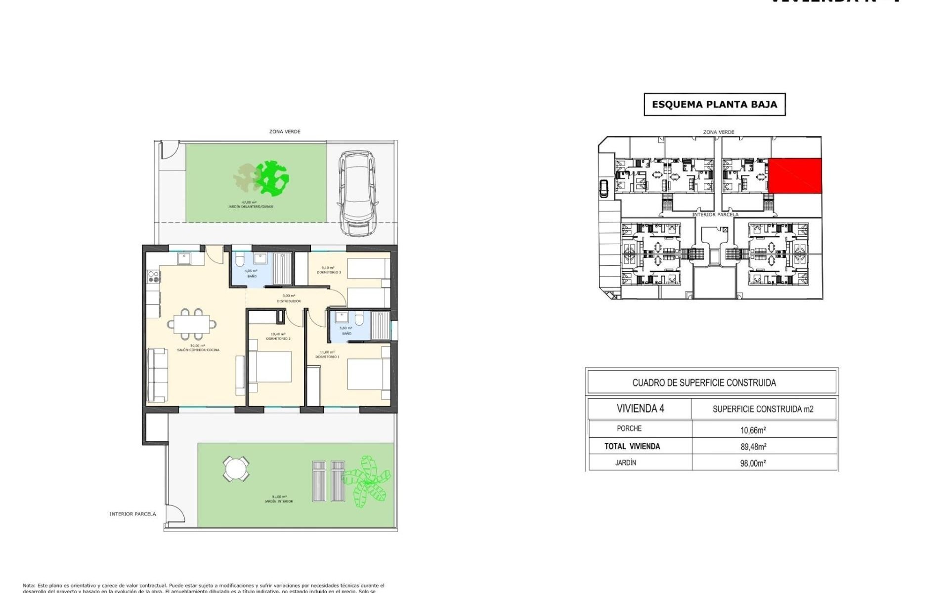
Entdecken Sie diese exklusive Neubausiedlung mit 16 modernen Bungalows in Pilar de la Horadada, einer charmanten Stadt im südlichsten Teil der Costa Blanca. Die Wohnanlage bietet Häuser mit 2 oder 3 Schlafzimmern und 2 voll ausgestatteten Bädern, die Komfort, Funktionalität und mediterranen Stil miteinander verbinden.
Die Wohnanlage liegt nur 3,5 km von den Stränden von Torre de la Horadada entfernt, und das Stadtzentrum ist zu Fuß erreichbar, wo Sie Supermärkte, Restaurants, Geschäfte und alle wichtigen Dienstleistungen finden.
Erstklassige Ausstattung und funktionelles Design
Jeder Bungalow ist aus hochwertigen Materialien gebaut und für ganzjähriges Wohnen oder Urlaubsvergnügen konzipiert. Zu den wichtigsten Merkmalen gehören:
Wohnungen im Erdgeschoss mit privatem Garten
Wohnungen im Obergeschoss mit privater Sonnenterrasse und Sommerküche
Voll ausgestattete Küche mit Geräten
Einbauschränke mit Schubladen
Moderne Bäder mit Regenduschen, Spiegeln, Vorinstallierte Klimaanlage
110-Liter-Aerothermie-Heißwassersystem für Energieeffizienz
Außen- und Innenbeleuchtung (ohne dekorative Einbauten)
Aluminium-Außentischlerei mit thermischer Trennung und Doppelverglasung
Zugewiesener Parkplatz für jede Einheit
Gemeinschaftspool für die Bewohner
Diese Häuser sind ideal für diejenigen, die eine pflegeleichte Immobilie in Küstennähe suchen, perfekt für dauerhaftes Wohnen, Urlaub oder als Investition für kurz- oder langfristige Vermietung.
Ideale Lage für einen entspannten mediterranen Lebensstil
Pilar de la Horadada bietet eine friedliche und doch lebendige Umgebung mit einem starken Gemeinschaftssinn. Die Stadt ist gut angebunden und bekannt für ihre breite Hauptstraße, die lokalen Kunsthandwerksläden und die zahlreichen Cafés und Tapas-Bars. Die Gegend verfügt über ein ausgezeichnetes Netz von Rad- und Wanderwegen sowie über eine Vielzahl von Sportanlagen und ganzjährigen Aktivitäten.
Wichtige Entfernungen:
Strände Torre de la Horadada und Mil Palmeras - 3. 5 km (5 Min. mit dem Auto)
Golfplatz Lo Romero - 7 km (10 Min. mit dem Auto)
Einkaufszentrum La Zenia Boulevard - 15 km (15 Min. mit dem Auto)
Flughafen Murcia (Corvera) - 40 km (40 Min. mit dem Auto)
Flughafen Alicante - 55 km (55 Min. mit dem Auto)
Sichern Sie sich Ihren Platz an der Costa Blanca
Egal, ob Sie auf der Suche nach einem Urlaubsdomizil, einer Anlageimmobilie oder Ihrem neuen Zuhause in der Sonne sind, diese stilvollen Bungalows in Pilar de la Horadada sind eine ausgezeichnete Wahl. Kontaktieren Sie uns noch heute für weitere Informationen oder um einen Besichtigungstermin zu vereinbaren!
Diese hier angegebenen Informationen unterliegen Fehlern und sind nicht Bestandteil eines Vertrages. Das Angebot kann ohne vorherige Ankündigung geändert oder zurückgezogen werden. Die Preise beinhalten keine Einkaufskosten.