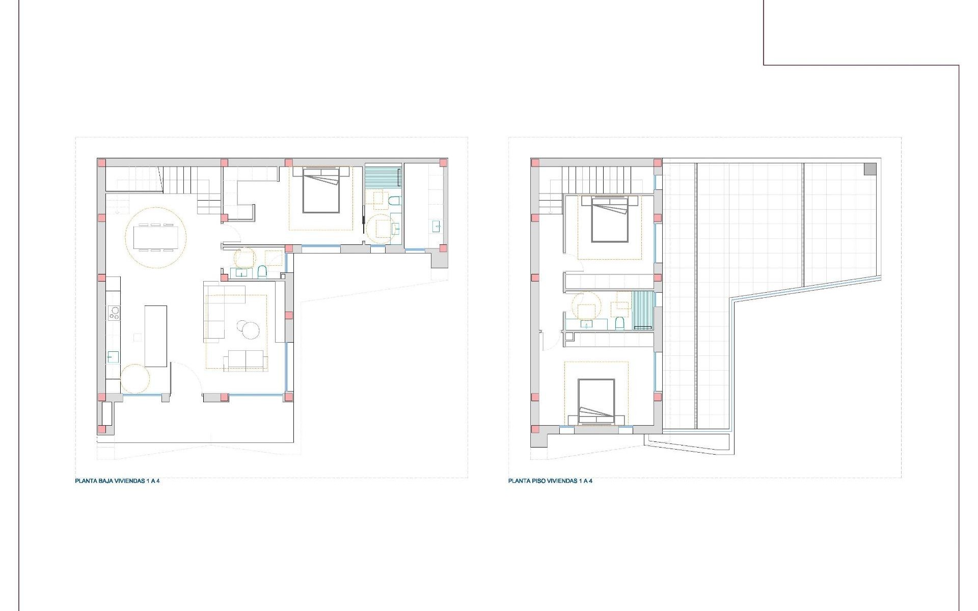
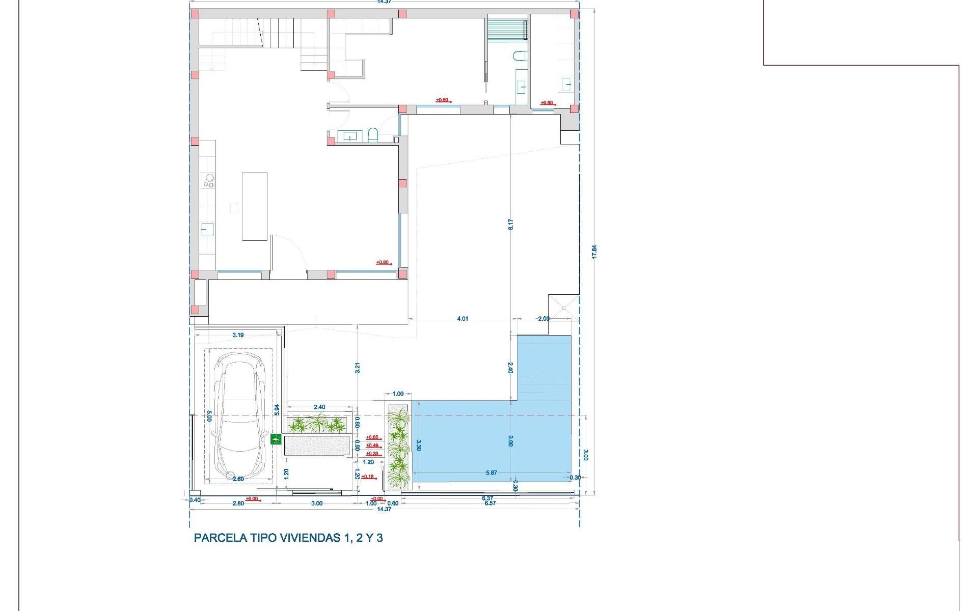
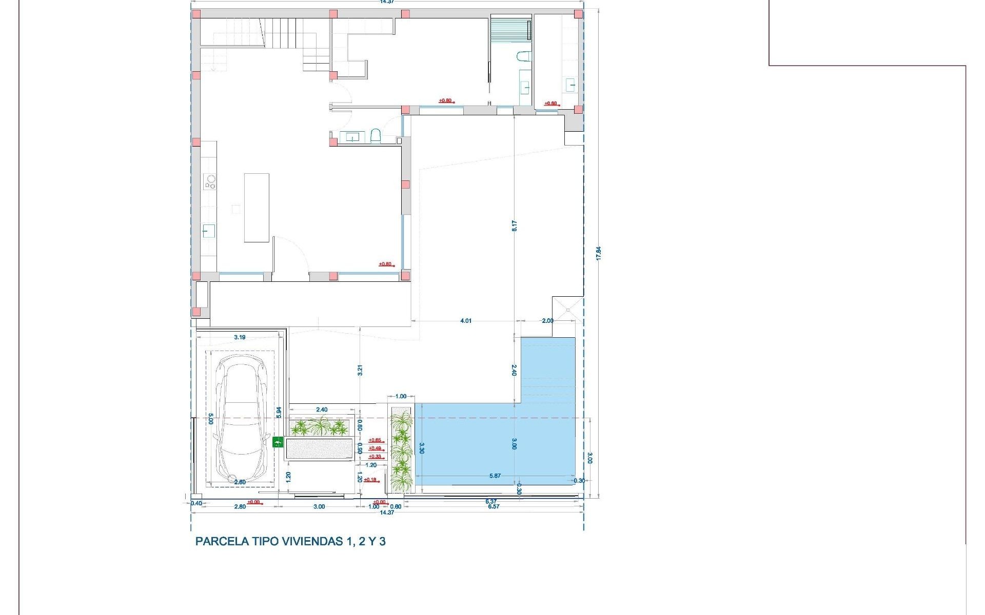
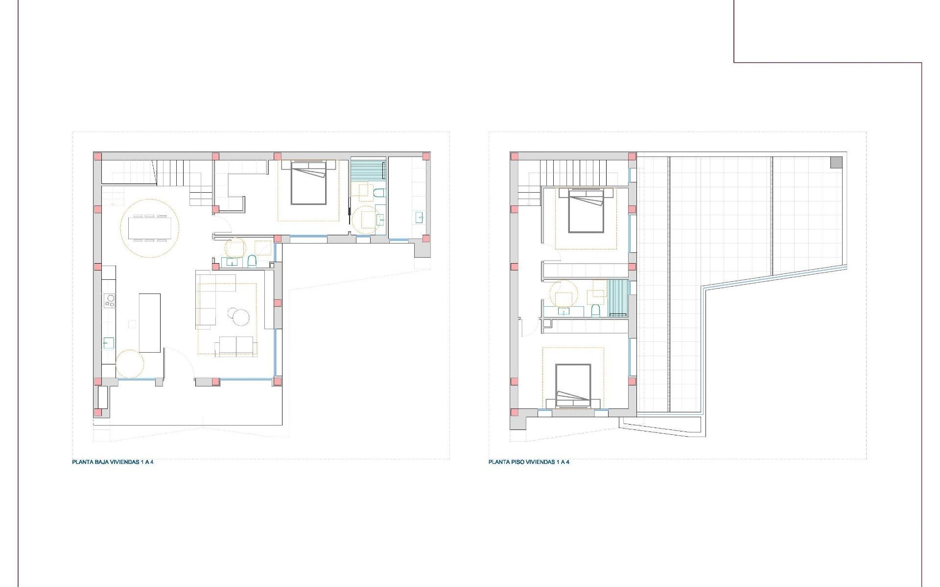
Modern New Build Villas in Dolores, Alicante Contemporary Living in the Heart of the Vega Baja Discover this exclusive new build villa development in Dolores, a charming town in the Vega Baja del Segura region, south of Alicante. Known for its traditional Spanish character and surrounded by lush countryside, Dolores offers a peaceful lifestyle while providing all daily amenities within walking distance — shops, restaurants, schools, and local services. Situated just 12 km from the beaches of La Marina and Guardamar del Segura, and with easy access to the AP-7 motorway, this residential area is perfectly connected to the main coastal towns of the Costa Blanca. Elegant Modern Villas with Private Pool These modern two-story villas have been designed for comfort, functionality, and style. On the ground floor, you’ll find a bright open-plan kitchen connected to the living-dining area, with large sliding doors opening directly to the terrace and private garden with swimming pool. The ground floor also features one bedroom with an ensuite bathroom, a guest toilet, and a convenient outdoor laundry area. On the first floor, there are two additional bedrooms, a bathroom, and access to a large 60 m2 open terrace, perfect for sunbathing or relaxing while enjoying the Mediterranean climate. Each home includes private parking inside the plot. Quality Finishes and Modern Comfort Built with high-quality materials and contemporary design, these villas come fully equipped for year-round living. Main features include: Exterior carpentry with thermal bridge break Motorized blinds Hot water system powered by aerothermal energy Ducted air conditioning fully installed Private swimming pool Private parking and landscaped garden The interiors combine elegance and functionality, maximizing natural light and offering an exceptional living environment with a strong connection between indoor and outdoor spaces. Prime Location Close to Everything Dolores enjoys a strategic location, providing a balance between tranquility and accessibility. Key distances: Beaches of La Marina and Guardamar del Segura: 12 km Alicante Airport (Elche-El Altet): 30 km (25 minutes by car) Murcia-Corvera Airport: 70 km (1 hour by car) Golf Courses: 15 km Alicante city: 40 km Live the Mediterranean Lifestyle in Dolores These new build villas in Dolores offer the perfect combination of modern design, comfort, and proximity to the coast. Ideal for both permanent residence and holiday living, they provide a serene Mediterranean lifestyle surrounded by nature and convenience. Contact us today to arrange a viewing and make your dream home in Dolores a reality.
This info given here is subject to errors and do not form part of any contract. The offer can be changed or withdrawn without notice. Prices do not include purchase costs.