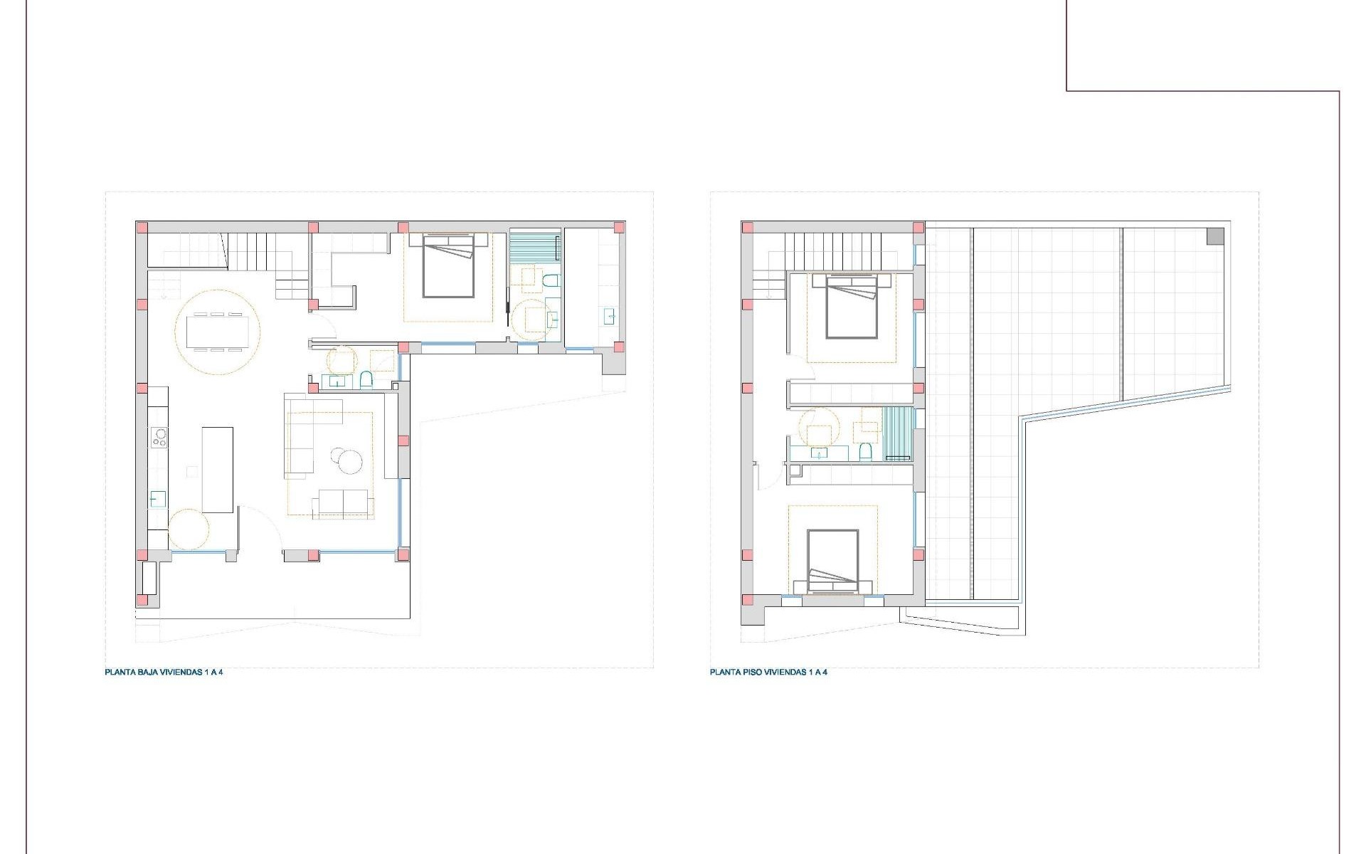
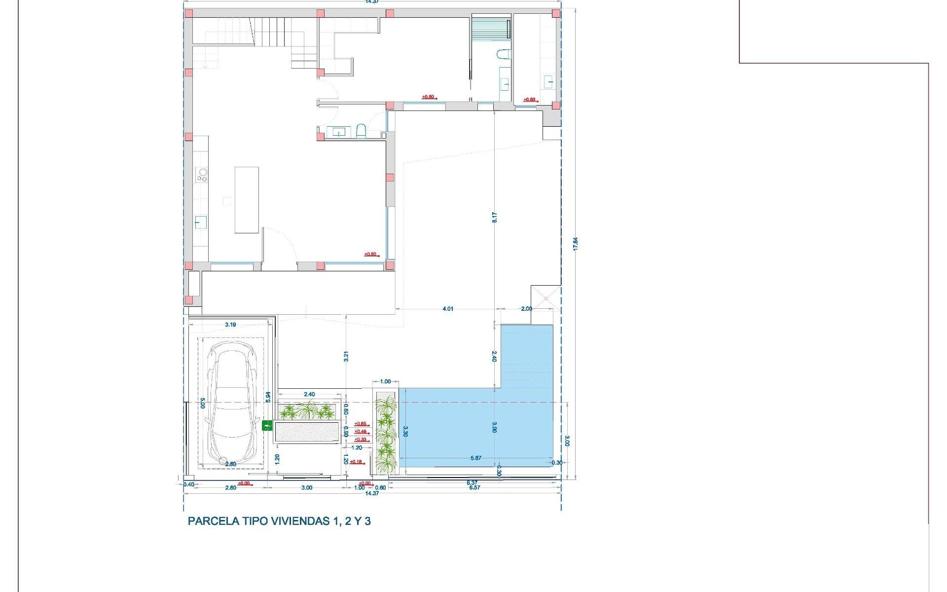
Moderne Neubauvillen in Dolores, Alicante Zeitgemäßes Wohnen im Herzen der Vega Baja Entdecken Sie diese exklusive Neubauvillenanlage in Dolores, einer charmanten Stadt in der Region Vega Baja del Segura südlich von Alicante. Dolores ist bekannt für seinen traditionellen spanischen Charakter und liegt inmitten einer üppigen Landschaft. Die Stadt bietet einen ruhigen Lebensstil und gleichzeitig alle Annehmlichkeiten des täglichen Lebens in Laufnähe – Geschäfte, Restaurants, Schulen und lokale Dienstleistungen. Nur 12 km von den Stränden von La Marina und Guardamar del Segura entfernt und mit guter Anbindung an die Autobahn AP-7 ist dieses Wohngebiet perfekt mit den wichtigsten Küstenstädten der Costa Blanca verbunden. Elegante, moderne Villen mit privatem Pool Diese modernen zweistöckigen Villen wurden mit Blick auf Komfort, Funktionalität und Stil entworfen. Im Erdgeschoss befindet sich eine helle, offene Küche, die mit dem Wohn-Essbereich verbunden ist und über große Schiebetüren direkt auf die Terrasse und den privaten Garten mit Swimmingpool führt. Im Erdgeschoss befinden sich außerdem ein Schlafzimmer mit eigenem Bad, eine Gästetoilette und ein praktischer Waschraum im Außenbereich. Im ersten Stock befinden sich zwei weitere Schlafzimmer, ein Badezimmer und der Zugang zu einer großen 60 m² großen offenen Terrasse, die sich perfekt zum Sonnenbaden oder Entspannen im mediterranen Klima eignet. Jedes Haus verfügt über einen privaten Parkplatz auf dem Grundstück. Hochwertige Ausstattung und moderner Komfort Diese Villen wurden mit hochwertigen Materialien und in zeitgemäßem Design gebaut und sind für das ganze Jahr über komplett ausgestattet. Zu den Hauptmerkmalen gehören: Außenholzarbeiten mit thermischer Trennung Motorisierte Jalousien Warmwassersystem mit aerothermischer Energie Voll installierte Klimaanlage mit Luftkanälen Privater Swimmingpool Privater Parkplatz und angelegter Garten Die Innenräume verbinden Eleganz und Funktionalität, maximieren das natürliche Licht und bieten ein außergewöhnliches Wohnumfeld mit einer starken Verbindung zwischen Innen- und Außenbereichen. Erstklassige Lage in der Nähe von allem Dolores genießt eine strategisch günstige Lage, die ein Gleichgewicht zwischen Ruhe und Erreichbarkeit bietet. Wichtige Entfernungen: Strände von La Marina und Guardamar del Segura: 12 km Flughafen Alicante (Elche-El Altet): 30 km (25 Minuten mit dem Auto) Flughafen Murcia-Corvera: 70 km (1 Stunde mit dem Auto) Golfplätze: 15 km Stadt Alicante: 40 km Erleben Sie den mediterranen Lebensstil in Dolores Diese neu gebauten Villen in Dolores bieten die perfekte Kombination aus modernem Design, Komfort und Nähe zur Küste. Sie eignen sich sowohl als Dauerwohnsitz als auch als Ferienhaus und bieten einen ruhigen mediterranen Lebensstil inmitten von Natur und Annehmlichkeiten. Kontaktieren Sie uns noch heute, um einen Besichtigungstermin zu vereinbaren und Ihr Traumhaus in Dolores Wirklichkeit werden zu lassen.
Diese hier angegebenen Informationen unterliegen Fehlern und sind nicht Bestandteil eines Vertrages. Das Angebot kann ohne vorherige Ankündigung geändert oder zurückgezogen werden. Die Preise beinhalten keine Einkaufskosten.